York Terrace II
Architectural
This Grade 1 listed white stucco terrace designed by the esteemed Architect John Nash, and was constructed from 1822 to 1823. This property was located on the west side of Regents Park’s outer circle.
Location: Marylebone, London
Status: Completed
Area: 177.3 sqm / 1908.4 sqft
RIBA Workstage: 0-6
Architecture
Our London architect obtained planning permission, Listed Building and Conservation Area consent, for this apartments refurbishment objective. The client requested a remodel of the interior configurations and management of the build. Regency period details were researched by us and incorporated into the final design.
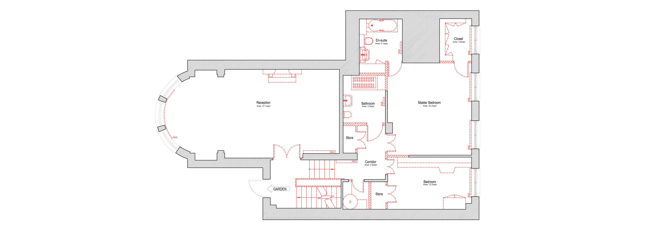
ground Floor plan
upper ground Floor plan
RELATED PROJECTS
ARRANGE A FREE CONSULTATION
Arrange a free consultation with one of our ARB or RIBA Architects today, we offer clients a free 30 minute zoom or on-site meeting.































