Stafford Place
Architectural
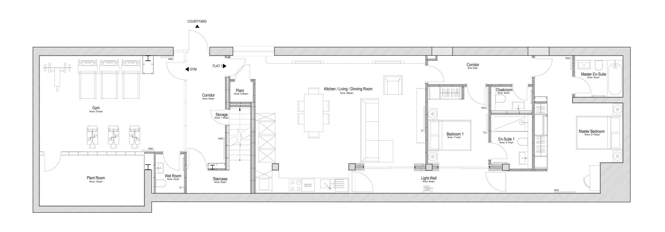
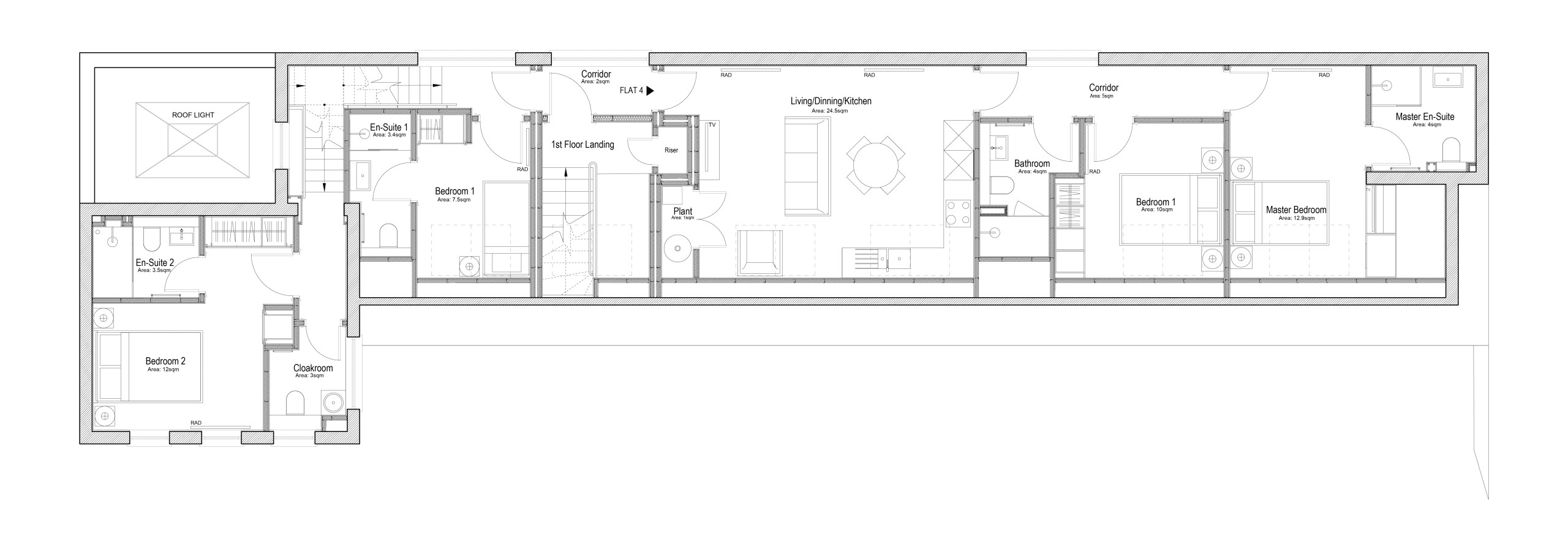
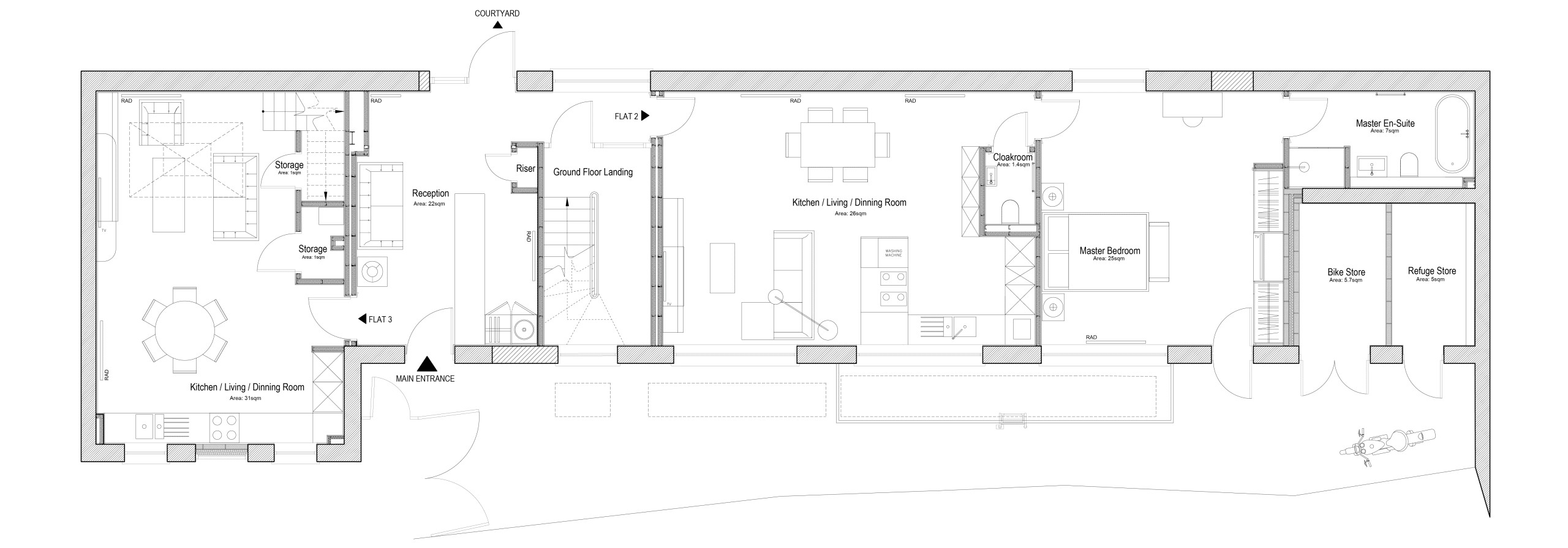
Situated at the end of a cul-de-sac off Palace Street in a Conservation area in Westminster, London, this property was previously a three-story office block. The side extension of this property was constructed in the post-war era. Our West London architects were able to secure planning approval to convert the building into four luxury apartments, with porter services and a gym in the basement.
Location: Stafford Place, Westminster
Status: Completed
Area: 435.3 sqm / 4685.5 sqft
RIBA Workstage: 0-6
Architecture
In addition to securing the necessary planning approvals, our team were appointed as the lead London architect, responsible for creating the construction package and managing the project all the way to it’s completion.
lower ground floor plan
ground floor plan
first floor plan
RELATED PROJECTS
ARRANGE A FREE CONSULTATION
Arrange a free consultation with one of our ARB or RIBA Architects today, we offer clients a free 30 minute zoom or on-site meeting.












































