Parkside I
Architectural
Originally built in 1906-1907 from red brick and Hartham Park stone. This Edwardian mansion block is within the Parkside residential mansion, and overlooks Hyde Park. This mansion complex apartment required full refurbishment. We were the principle London architects firm for this project.
Location: Knightsbridge, London
Status: Completed
Area: 219 sqm / 2357 sqft
RIBA Workstage: 0-6
Architecture
Our West London architects obtained planning permission from the relevant authorities to install air conditioning in this apartment. As the lead designer, we prepared the all the required documentation to secure a management license and construction documents for the new layouts.
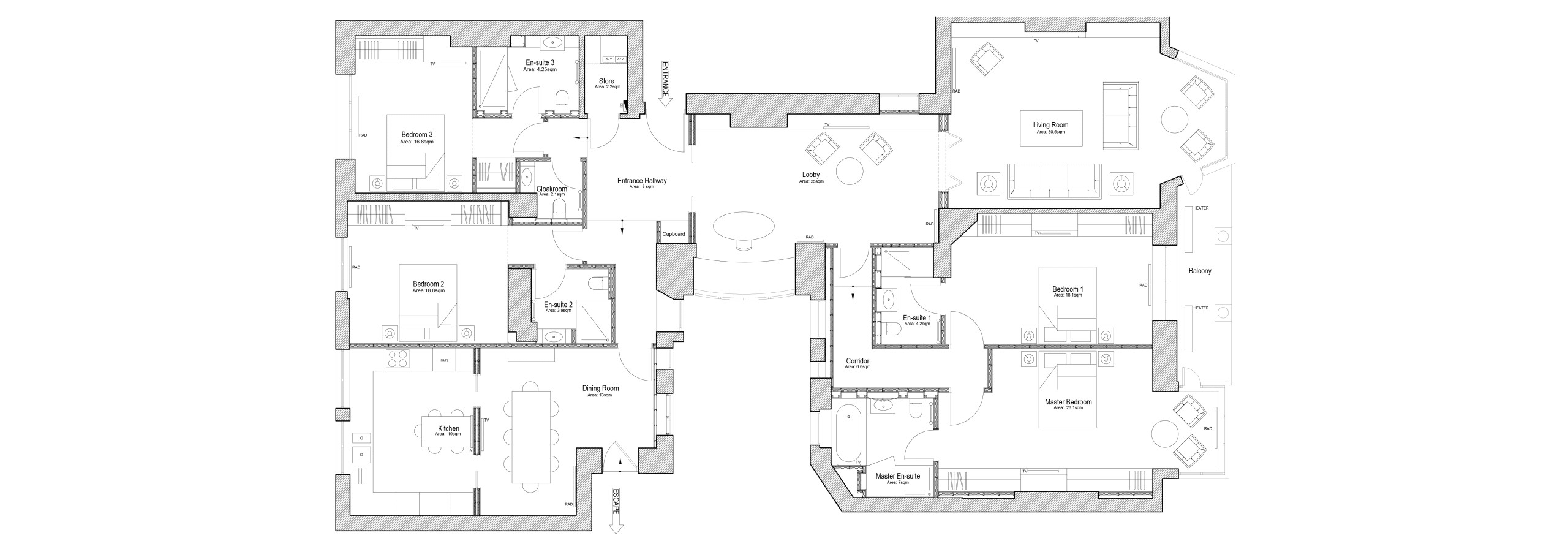
Floor plan
RELATED PROJECTS
ARRANGE A FREE CONSULTATION
Arrange a free consultation with one of our ARB or RIBA London Architects today, we offer clients a free 30 minute zoom or on-site meeting.










































