Berkeley Court I
Architectural
This 1930s Art Deco masterpiece, Berkeley Court, features a secluded rooftop garden. While the building’s exterior remains timeless, much of its interior needed a modern makeover. Our West London architects were tasked with transforming this apartment into luxurious residence.
Location: London
Status: Completed
Area: 181.9 sqm / 1958 sq ft
RIBA Workstage: 0-6
Architecture
We worked closely with the building’s management, we secured approval to expand the bedrooms and overall living space in this apartment. As the lead London architects on this project, we prepared the needed documentation for both the management license and the apartments construction for the new layout.
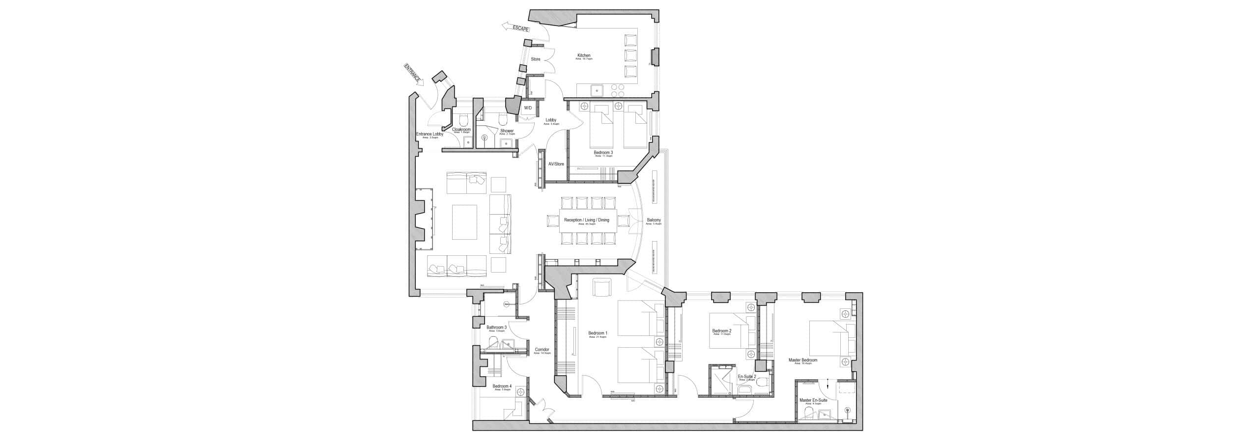
Floor plan
RELATED PROJECTS
ARRANGE A FREE CONSULTATION
Arrange a free consultation with one of our ARB or RIBA Architects today, we offer clients a free 30 minute zoom or on-site meeting.








































