Hyde Park Gate
Architectural
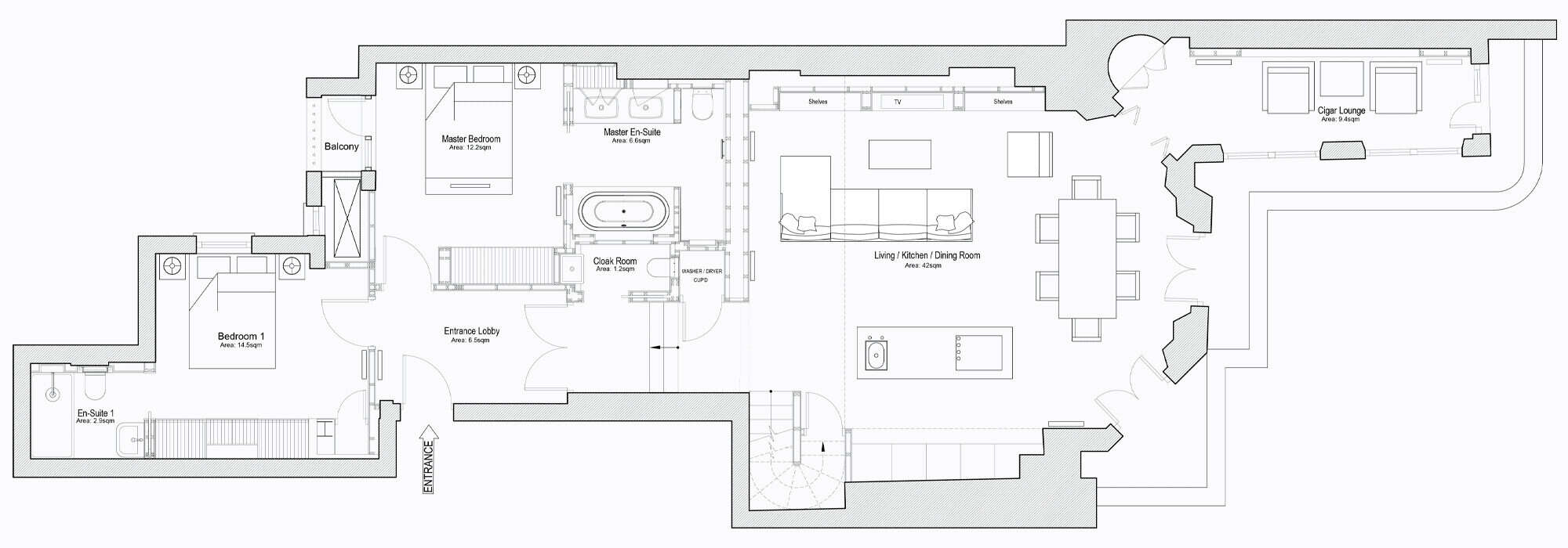
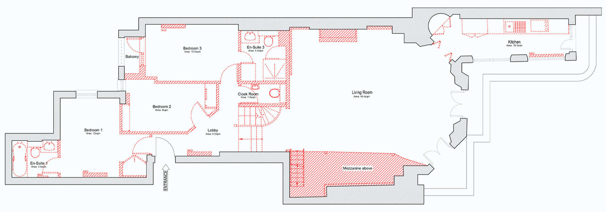
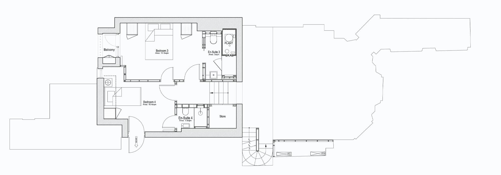
Our client and asked our London architects to assist in transforming this traditional three bedroom Edwardian apartment into a modern contemporary four bedroom property.
Location: Kensington, London
Status: Completed
Area: 153.3 sqm / 1650.1 sqft
RIBA Workstage: 0-7
Architecture
This client sought marble lined walls in the bathrooms and marble flooring with underfloor heating throughout. An impact resistant glass balustrade was installed for the mezzanine, removing the need for any railing, so that the two floors appear as one flowing space.
ground level
mezzanine level
RELATED PROJECTS
ARRANGE A FREE CONSULTATION
Arrange a free consultation with one of our ARB or RIBA West London architects today, we offer clients a free 30 minute zoom or on-site meeting.








































