marylebone York Terrace I
Architectural
A Grade 1 listed white stucco terrace building designed and built between 1822-3. It is located on the west side of Regents Park’s outer circle.
Location: Marylebone, London
Status: Completed
Area: 185 sqm / 1991.3 sqft
RIBA Workstage: 0-6
Architecture
Our London Architect obtained planning permission, Listed Building and Conservation Area consent, for this apartment refurbishment project. The Regency period details were researched and included in the final design.
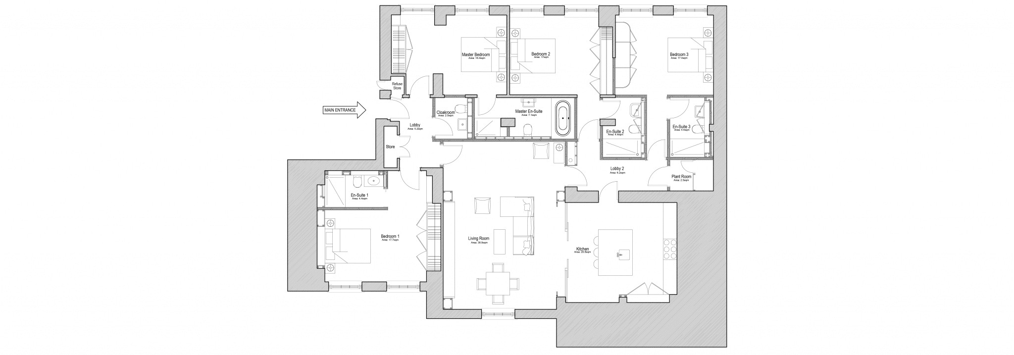
Floor plan
RELATED PROJECTS
ARRANGE A FREE CONSULTATION
Arrange a free consultation with one of our ARB or RIBA West London Architects today, we offer clients a free 30 minute zoom or on-site meeting.






































